純余熱發電系統完全是利用水泥生產過程中產生的余熱發電,因此投資這種項目可帶來如下好處:
1)余熱發電系統運行費用少,僅消耗部分水和少量藥品,增加少量管理人員,成本約0.08元/kW•h左右,在不增加水泥燒成熱耗的情況下,每噸熟料可發電25~40kW•h,可節約大量電力費用,降低水泥產品成本,提高企業的經濟效益。
2)對電力緊張的地區,可以緩解因供電不足影響生產的矛盾,發電自給率可達20%~30%。
3)建設用地可利用廠區空地,不需另外征地。項目的實施不會影響正常的水泥生產。
4)可為國家節約量的能源,減少環境污染。
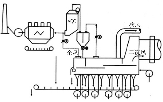
1.水泥廠中溫純余熱發電的點及工藝流程
在水泥廠,中溫純余熱發電與中空窯余熱發電不同,有其特殊性。1)中溫純余熱發電僅用在帶預熱器的窯上且完全利用其余熱發電;2)廢氣余熱的品位比較低,廢氣溫度一般在200~400℃之間;3)可利用的廢氣余熱源在一個以上;4)余熱發電配置的熱力系統相對較復雜;5)熱力系統的壓力等級相對較;6)單位發電量的設備體積和重量相對較大。因此,在系統的選擇和配置、應用和投資分析上都是一個新的課題。中溫純余熱發電的基本工藝流程圖見圖1。
2.發電規模的確定
首先對工藝系統的余熱量進行核算以便確定余熱發電的規模。一般來說余熱量取決于生產規模和生產工藝。對于同一種生產規模若采用不同的生產工藝和設備,那么余熱量也有較大的差別。一般中溫純余熱發電系統的余熱回收分為兩部分:其一是窯尾預熱器出口的廢氣余熱;其二是窯頭冷卻機出口的廢氣余熱。
圖1某2500t/d水泥廠余熱發電工藝流程
對于窯尾余熱一般生產工藝考慮出預熱器的廢氣余熱部分回收作為生料磨的烘干熱源,多余部分經增濕除塵排放。若增加余熱回收裝置,不能只簡單地回收多余部分的廢氣余熱,而要與生料磨系統綜合起來考慮,盡可能將溫廢氣提供給余熱鍋爐,而將余熱鍋爐的排氣送給生料磨,這樣余熱鍋爐可以利用較的溫差生產蒸氣,回收的熱焓,鍋爐的受熱面小,耗鋼量小,產氣的壓力等級相對較高,有利于提高整個系統的效率。我們曾對某廠窯尾的余熱回收作過比較,其結果見表1。
表1窯尾余熱回收情況
注:廢氣量為標準狀況下。
鍋爐的排煙溫度受到給水溫度的限制,不可能很低,而生料磨的排氣溫度可到90℃左右。余熱鍋爐設在生料磨前,余熱鍋爐的排煙溫度就是入生料磨的廢氣溫度。這一溫度的確定受兩個條件的制約。1)入生料磨的原料綜合水分;2)生料磨的操作風量。對此可通過生料磨系統的熱平衡計算來初定。然后兼顧考慮余熱回收熱力系統的蒸氣參數,可確定余熱鍋爐的排煙溫度,即可確定窯尾鍋爐的余熱量。若窯尾有煤磨系統也需一并考慮。窯頭冷卻機的余熱量的小除與生產規模有關外還與燒成熱耗和冷卻機的效率有關。一般是熱耗,余熱量小;冷卻機熱效率高,余熱量少。篦冷機的余熱回收有下面三種形式:1)余風直接利用;2)中部抽氣;3)帶回熱循環。三種形式分別見圖2、圖3、圖4。
圖2余風直接利用形式
圖3中部抽氣形式
圖4帶回熱循環形式
從三種情況看種系統簡單,篦冷機無需改造,但廢氣溫度,溫差小,余熱鍋爐體積,耗鋼量;種系統簡單,回收的廢氣溫度,可減小鍋爐體積和耗鋼量,且生產的蒸氣溫度、壓力均可提,但篦冷機需進行一定的改造。第三種系統較復雜,但余熱回收量可明顯提。體采用何種形式要根據各個廠的實際情況確定。窯頭篦冷機的形式及取氣方式決定了窯頭回收的余熱量。終根據窯頭窯尾的余熱量可確定發電的規模。
3.系統的主要設備及系統配置
3.1余熱鍋爐
余熱鍋爐按布置形式可分為立式和臥式兩種,按循環方式又可分為強制循環和自然循環。在中溫純余熱發電系統中,一般設置兩臺余熱鍋爐,一臺為窯尾鍋爐通常稱SP爐,一臺為窯頭鍋爐通常稱AQC爐。
SP爐設置在一級預熱器和窯尾主排風機之間。廢氣溫度一般在300~400℃之間,含塵量,一般為標準狀況下50~80g/m3,廢氣的負壓較。要求鍋爐的換熱原件不易積灰,受熱面布置便于清灰,且鍋爐的密封性能要優。采取的布置形式一般根據工廠的場地、粉塵的堆積性等條件確定。臥式鍋爐的點是煙氣在爐中水平流動,受熱面是蛇形光管,豎直布置上端固定在構架上,下端為自由端,并焊有振打裝置之連桿,殊設計的振打裝置對受熱面定期振打,加之蛇形管為豎直懸吊在構架上,可使受熱面保持干凈無灰,從而保證了很的傳熱。由于工作介在蛇形管內上下流動,無法利用其重度差進行自然循環,所以采用強制循環。鍋爐下部用一內置式拉鏈機將灰輸送至鍋爐的一端經一鎖風喂料機輸出。立式鍋爐的點是煙氣在爐中垂直流動,受熱面也采用蛇形光管,但水平布置,分組采用殊的掛件懸掛在構架上,分組設置振打裝置,從上至下逐組振打,也能滿足清灰的要求,但這種布置方式比起豎管的清灰干凈略差,所以在受熱面的設置上要考慮上述因素,以確保鍋爐的率。但立式鍋爐占地面積小,布置方便。
冷卻機的廢氣雖然含塵量不大,標準狀況下約10~20g/m3,但磨蝕性。所以AQC爐的設置分前置式和置式兩種。前置式即AQC爐設在冷卻機與電除塵器之間,這種設置一般還需加預除塵裝置以減輕粉塵對AQC爐內的換熱管磨蝕,因此系統阻力增加較多,但可以利用圖3、圖4流程。置式即AQC爐設在電除塵和窯頭排風機之間,粉塵對換熱管磨耗小,且系統阻力增加不大,但電除塵器必須密封性能優,漏風量小,熱損失小。窯頭粉塵為熟料顆粒,粘附性不強,所以AQC爐的結灰不嚴重,一般均選為立式鍋爐。由于窯頭的廢氣溫度,量大,且對鍋爐的排氣無殊要求,應盡可能地回收余熱。為了增換熱面積,強化換熱,AQC爐的換熱管應采用螺旋翅片管或蟹形針管等能明顯增加換熱面積而又耐磨蝕的管形。
3.2汽輪發電機
用于余熱利用的汽輪發電機的點是以汽定電,所以要求帶負荷的能力可在較范圍內波動,尤其是發電機的選型要考慮能過設計發電量的15%左右。目前市場上可用于中溫純余熱發電系統的汽輪發電機有兩種:一種為單壓系統的參數凝汽式汽輪機。點是系統簡單,適合3000kW左右的小機組。另一種為混壓系統,除主蒸氣進口外還有一至兩個補氣口,并輔助采用了熱水閃蒸,用閃蒸的飽和蒸氣混入汽輪機做功。點是系統較復雜,但系統熱效率較,適合6000kW以上機組。
3.3熱力系統
在熱力系統的設計上一般是根據廢氣溫度及廢氣量經過合理配置來確定蒸氣參數和蒸氣量,一般選用的汽輪機的參數比較。在余熱鍋爐設置上,對SP爐來說因出爐的廢氣還要用于原料的烘干,所以一般SP爐帶汽包僅設置過熱器和蒸發器。AQC爐的排煙無特殊要求,主要設置省煤器,也可帶汽包設置蒸發器,有可能的情況下也可適當的設置過熱器(如窯頭采用圖3、圖4流程)。余熱鍋爐的受熱面的配置,終是根據余熱資源及產氣量配置的。所以各水泥廠之間不盡相同,一般余熱鍋爐采用非標設計。由于系統用于水泥廠的余熱發電,所以汽輪機必須帶有前壓調節裝置,當機組在正常運行時,以汽輪機的進口壓力作為主要控制參數,來調節機組輸出功率以保證壓力基本穩定,這種方式可適應廢氣余熱參數的變化,使整個系統有較的適應性和可靠性。
4.注意事項
1)工藝系統的操作參數要提供準確,這些參數是余熱回收系統的設計依據。
2)對工藝系統中部分設備要進行核算。①窯頭、窯尾風機因系統阻力增加,介質溫度變化,運行工況點要進行變化,所以要對運行工況下的風機能力和裝機功率進行核算,能力不夠的要采取相應的措施。②生料磨系統。在未考慮余熱發電系統以前,一般窯尾的廢氣作為生料磨的烘干熱源熱量都有富余,所以對生料磨系統密封要求不是很嚴格;增加了余熱發電系統,余熱要做到限度的回收,這就需要對生料磨系統加強密封,盡可能減少漏風。漏風量會產生兩方面的不利影響:①提入磨的熱風溫度即提鍋爐的排煙溫度,鍋爐可回收的熱量減少;②入磨的熱風溫度越低,生料磨的烘干效率越低,而磨尾的排風量隨之增大,耗電量增加。
3)系統的總體設計上汽輪機房盡可能與窯尾鍋爐靠近。而循環冷卻水池的位置靠近汽輪機房,以減少熱損失和自耗電。
4)增加余熱發電系統,會對水泥生產工藝的一些操作參數產生影響,要作適當調整。如窯頭篦冷機的操作,生料磨系統的操作,窯頭、窯尾風機、電除塵器的操作等。因此,要做優這一工作必須要有的水泥工藝人員負責協調生產系統和余熱發電系統的關系,參與系統的設計和管理工作。調整優各自的操作,才能真正做到不影響水泥工藝的生產,并使余熱發電系統率運行。
5.經濟評價及投資分析
純余熱發電系統完全是利用水泥生產過程中產生的余熱發電,因此投資這種項目可帶來如下好處:
1)余熱發電系統運行費用少,僅消耗部分水和少量藥品,增加少量管理人員,成本約0.08元/kW•h左右,在不增加水泥燒成熱耗的情況下,每噸熟料可發電25~40kW•h,可節約量電力費用,降水泥產品成本,提企業的經濟效益。
2)對電力緊張的地區,可以緩解因供電不足影響生產的矛盾,發電自給率可達20%~30%。
3)建設用地可利用廠區空地,不需另外征地。項目的實施不會影響正常的水泥生產。
4)可為國家節約量的能源,減少環境污染。
6.仟億達水泥窯余熱發電案例
唐山弘也水泥6MW余熱發電項目
仟億達股份是能源項目投資、資源循環利用項目投資集團,以金融資本推動節能環保事業。主要采用合同能源管理服務模式,為客戶提供工業整體節能環保解決方案。業務涵蓋分布式能源項目投資,包括園區熱電聯產、冷熱電三聯供、光伏發電、利用余熱及可燃氣體進行余熱發電、余熱余壓回收利用,煤改氣投資建設,脫硫脫硝,電機拖動節能,包括中壓變頻節能、節能泵改造,同時公司自行研發能源管理平臺、在線監測平臺。公司主要服務領域為工業領域,包括冶金、建材、電力、化工、煤炭、石油、機械、紡織、輕工、醫藥等大型生產耗能企業。
仟億達堅持“誠信、優先、奉獻、共享”的經營理念,致力于推進工業節能、生態文明。仟億達股份注冊資本1.01億元,目前市值約19億元,立志成為節能減排企業!
- 想實現清潔生產和提升焦炭量?快找仟億達干熄焦余熱發電2015-12-08
- 仟億達飽和蒸汽發電成為新的亮點2015-11-21
- 仟億達燒結低溫余熱發電工程有效降低燒結工序能耗2015-11-19
- 仟億達燃氣冷熱電三聯供簡介2015-11-11
- 仟億達螺桿余熱發電2015-11-10
熱門資訊

- 章建華:深入學習貫徹習近平總書記重要講話精神 以更大力度推動我國新能源高質量發展習近平總書記在中共中央政治局就新能源技術與我國的能...









